ÍÆ¶¯ÐÂÒ»´úÐÅÏ¢ÊÖÒÕÓëÖÆÔìÊÖÒÕÈںϣ¬£¬£¬£¬£¬£¬×ÅÁ¦´òÔìÈ«Êý×Ö»¯ÔËÓªµÄÖǻ۹¤³§
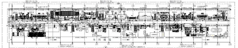
¡¡¡¡¼Æ»®ÀàÐÍ£ºË«ÊúÁº£¬£¬£¬£¬£¬£¬èì¼Ü»úеÊÖ
¡¡¡¡³ÐÔØÄÜÁ¦£ºµ¥ÊÖ¿Éץȡ50kg-300kg¹¤¼þ
¡¡¡¡²úÆ·ÖÖÀࣺ¼æÈÝ8-9ÖÖ²úÆ·£¬£¬£¬£¬£¬£¬5L-15LÇúÖᣬ£¬£¬£¬£¬£¬Ö÷ÒªÓÐΫ²ñ¡¢´÷Ä·ÀÕ¡¢¿µÃ÷˹¡¢Îý²ñ¡¢¿¨ÌرËÀÕ¡¢¶·É½¡¢ÎÖ¶ûÎÖ¡¢µÀÒÀ´ÄµÈÆ·ÅÆ²úÆ·¡£¡£¡£¡£¡£¡£
¡¡¡¡Ô°µØ¹æÄ££º³¤120m¡Á¿í21m
¡¡¡¡¾«ÒæÉú²ú£ºµ¥¼þÁ÷£¬£¬£¬£¬£¬£¬100%ÏȽøÏȳö¡£¡£¡£¡£¡£¡£
¡¡¡¡²úÆ·È«Àú³Ì×·ËÝϵͳ£º×Ô¶¯ÊÕÂÞ¼Ó¹¤Àú³ÌÐÅÏ¢£¬£¬£¬£¬£¬£¬×Ô¶¯×èµ²Òì³£/©¹¤Ðò¹¤¼þ£»£»£»£»£»£»£»
¡¡¡¡ÓŵÂ88¹ÙÍøÍøÕ¾ÖÆÔìÖ´ÐÐϵͳ£¨MESϵͳ£©£º×Ô¶¯»¯×°±¸¾ÙÐÐʵʱ¼à¿Ø£¬£¬£¬£¬£¬£¬OEEͳ¼ÆÆÊÎö£¬£¬£¬£¬£¬£¬Éú²úÊý¾Ýʵʱ¼à¿Ø£¬£¬£¬£¬£¬£¬Ê¹Éú²úÀú³ÌÊý¾Ý͸Ã÷»¯¡¢¿ÆÑ§»¯¡£¡£¡£¡£¡£¡£
¡¡¡¡ÊµÑéЧ¹û£ºÐ§ÂÊÌáÉý32%£¬£¬£¬£¬£¬£¬Ö°Ô±½ÚÔ¼49%£¬£¬£¬£¬£¬£¬ÖÊÁ¿Îȹ̡¢Êý¾Ý͸Ã÷¡£¡£¡£¡£¡£¡£
